空知 -Koochi- - Kanazawa
Experience Japan like never before! Wander through Kyoto’s ancient shrines, marvel at Tokyo’s neon skyline, and soak in natural hot springs. Indulge in world-famous sushi, witness cherry blossoms in full bloom, and explore samurai heritage. Ride the bullet train to breathtaking Mount Fuji or immerse yourself in vibrant nightlife. Whether you seek adventure, culture, or relaxation, Japan has it all. Don’t wait—book your dream getaway today and create unforgettable memories.
空知 -Koochi-
Kanazawa 主計町2-10
WiFi
Parking
We speak
JA KO ZH-CN
9.2/10
WiFi
Parking
We speak
JA KO ZH-CN
9.2/10
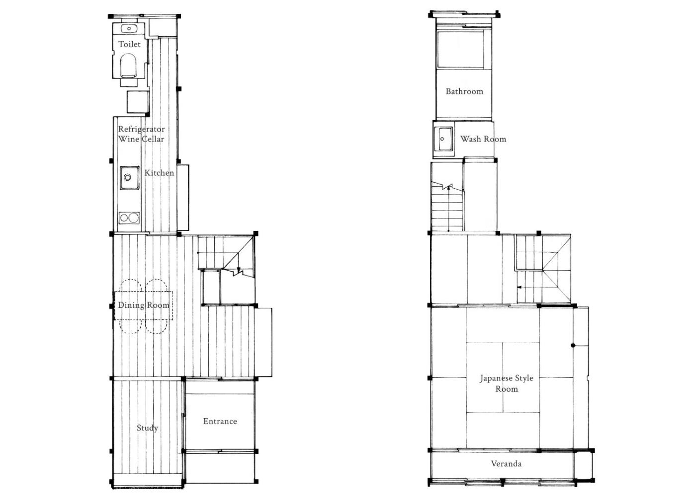
Situated in Kanazawa and only 1.2 km from Kanazawa Castle, 空知 -Koochi- features accommodation with river views, free WiFi and free private parking. This recently renovated villa is located 1.2 km from Kenrokuen Garden and 1.9 km from Kanazawa Station. The property is non-smoking and is located 3.2 km from Myoryuji - Ninja Temple.
The air-conditioned villa is composed of 1 separate bedroom, a fully equipped kitchen with an oven and a microwave, and 1 bathroom. Towels and bed linen are available in the villa. For added privacy, the accommodation features a private entrance.
Popular points of interest near the villa include Kazuemachi Tea House Street, Izumi Kyoka Museum and Kuboichi Ototsurugigu Shrine. Komatsu Airport is 33 km from the property.
The hotel day starts from hour 15:00 and ends at 11:00.
This property will not accommodate hen, stag or similar parties.
Please inform in advance of your expected arrival time. You can use the Special Requests box when booking, or contact the property directly with the contact details provided in your confirmation.
One-Bedroom Villa. Featuring a private entrance, this air-conditioned villa consists of a kitchen, 1 bedroom and 1 bathroom with a bath and a shower. The fully equipped kitchen features a stovetop, a refrigerator, kitchenware and an oven. The villa has tatami floors and provides a tea and coffee maker, heating and river views. The unit offers 3 futons.
License number: 衛指第23250004号
Luggage storage
Fire extinguishers
Free WiFi
Private parking
WiFi available in all areas
Air conditioning
Non-smoking rooms
CCTV outside property
Internet services
WiFi
Parking
Free parking
Non-smoking throughout
Smoke alarms
