南知多Seaside Villa - Minamichita
Experience Japan like never before! Wander through Kyoto’s ancient shrines, marvel at Tokyo’s neon skyline, and soak in natural hot springs. Indulge in world-famous sushi, witness cherry blossoms in full bloom, and explore samurai heritage. Ride the bullet train to breathtaking Mount Fuji or immerse yourself in vibrant nightlife. Whether you seek adventure, culture, or relaxation, Japan has it all. Don’t wait—book your dream getaway today and create unforgettable memories.
南知多Seaside Villa
Minamichita 愛知県知多郡南知多町豊浜西之浦52
WiFi
Parking
We speak
JA ZH-CN
5.8/10
WiFi
Parking
We speak
JA ZH-CN
5.8/10
The recently renovated 南知多Seaside Villa isin Minamichita, near Yamami Beach and Sakura Park. Among the facilities at this property are full-day security and luggage storage space, along with free WiFi throughout the property. The property is non-smoking and is situated 48 km from Nippon Gaishi Hall.
The air-conditioned apartment consists of 1 bedroom, a living room, a fully equipped kitchen with a microwave and a kettle, and 1 bathroom with a bidet and slippers. A flat-screen TV is featured. The apartment offers bed linen, towels and laundry service.
Chubu Centrair International Airport is 42 km away.
The hotel day starts from hour 16:00 and ends at 10:00.
This property will not accommodate hen, stag or similar parties.
Managed by a private host
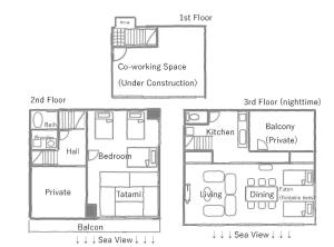
One-Bedroom Apartment. This spacious apartment is comprised of 1 living room, 1 separate bedroom and 1 bathroom with a bath and a shower. The well-fitted kitchen features a refrigerator, kitchenware, a microwave and an electric kettle. The air-conditioned apartment offers a flat-screen TV, a washing machine, tatami, a dining area as well as sea views. The unit offers 3 beds and 6 futons.
License number: M230032611
Smoke alarms
WiFi
Security alarm
Invoice provided
Linens, towels and laundry washed in accordance with local authority guidelines
Key access
WiFi available in all areas
Luggage storage
All plates, cutlery, glasses and other tableware have been sanitized
Screens or physical barriers placed between staff and guests in appropriate areas
Vending machine (drinks)
Face masks for guests available
Family rooms
CCTV in common areas
Contactless check-in/check-out
Physical distancing in dining areas
Access to health care professionals
Non-smoking throughout
Guest accommodation sealed after cleaning
Use of cleaning chemicals that are effective against Coronavirus
Air conditioning
Physical distancing rules followed
Laundry
24-hour security
Cashless payment available
Internet services
Property is cleaned by professional cleaning companies
First aid kit available
Fire extinguishers
Free parking
Shared stationery such as printed menus, magazines, pens, and paper removed
Non-smoking rooms
Parking
Guest accommodation is disinfected between stays
Hand sanitizer in guest accommodation and key areas
Private check-in/check-out
Free WiFi
Process in place to check health of guests
Heating
Thermometers for guests provided by property
Staff follow all safety protocols as directed by local authorities
Guests have the option to cancel any cleaning services for their accommodation during their stay
