Aizanso - Vacation STAY 22208v - Nakijin
Experience Japan like never before! Wander through Kyoto’s ancient shrines, marvel at Tokyo’s neon skyline, and soak in natural hot springs. Indulge in world-famous sushi, witness cherry blossoms in full bloom, and explore samurai heritage. Ride the bullet train to breathtaking Mount Fuji or immerse yourself in vibrant nightlife. Whether you seek adventure, culture, or relaxation, Japan has it all. Don’t wait—book your dream getaway today and create unforgettable memories.
Aizanso - Vacation STAY 22208v
Nakijin 272-3 Nakasone Nakijinson Aizanso
WiFi
Parking
We speak
JA
9.5/10
WiFi
Parking
We speak
JA
9.5/10
Situated 48 km from Maeda Cape, 13 km from Okinawa Churaumi Aquarium and 25 km from Busena Marine Park, Aizanso - Vacation STAY 22208v features accommodationin Nakijin. With free private parking, the property is 2.1 km from Koechi Beach and 8.7 km from Nakijin Gusuku Castle. The property is non-smoking and is located 36 km from Onna-son Community Center.
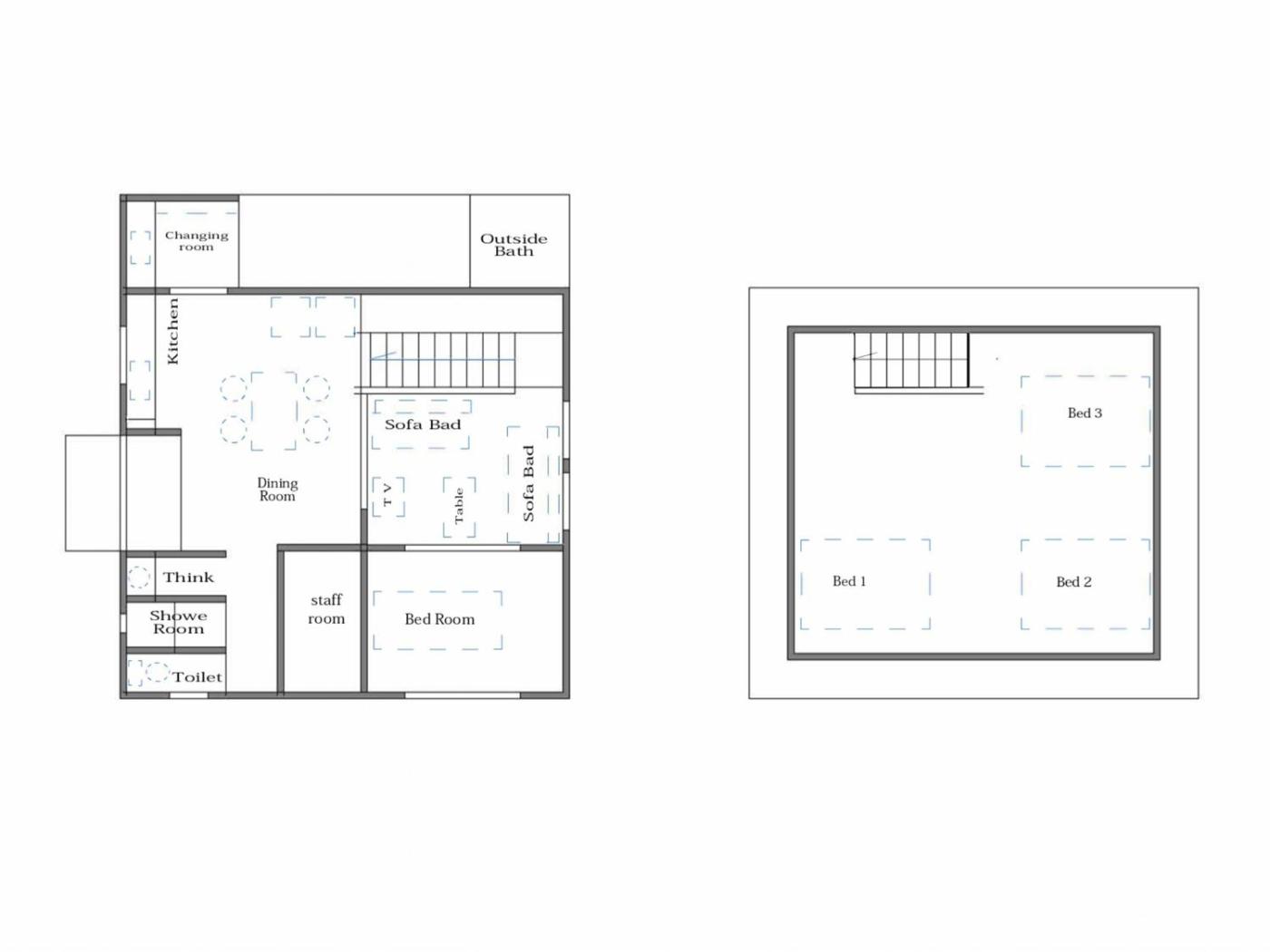
With free WiFi, this 2-bedroom holiday home provides a TV, a washing machine and a fully equipped kitchen with a microwave and fridge. The accommodation offers an air conditioning, a heating and a private bathroom.
Naha Airport is 85 km away.
The hotel day starts from hour 15:00 and ends at 11:00.
If you would like a qualified invoice,please contact the property directly.This property will not accommodate hen, stag or similar parties.
Holiday Home. The holiday home provides air conditioning, a washing machine, as well as a private bathroom featuring a bath and a shower. Guests will find a stovetop, a refrigerator, kitchenware and a microwave in the well-equipped kitchen. The holiday home also offers a barbecue. This holiday home features tumble dryer, heating and a TV. The unit offers 6 beds.
License number: 北保第R5ー13号
Private parking
Heating
WiFi available in all areas
Fire extinguishers
Air conditioning
Parking on site
WiFi
First aid kit available
Internet services
Parking
Physical distancing rules followed
Free parking
Non-smoking rooms
Free WiFi
Guest accommodation sealed after cleaning
Property is cleaned by professional cleaning companies
Smoke alarms
Guest accommodation is disinfected between stays
Hand sanitizer in guest accommodation and key areas
Contactless check-in/check-out
Non-smoking throughout
