Konjaku-so - Vacation STAY 62017v - Osaka
Experience Japan like never before! Wander through Kyoto’s ancient shrines, marvel at Tokyo’s neon skyline, and soak in natural hot springs. Indulge in world-famous sushi, witness cherry blossoms in full bloom, and explore samurai heritage. Ride the bullet train to breathtaking Mount Fuji or immerse yourself in vibrant nightlife. Whether you seek adventure, culture, or relaxation, Japan has it all. Don’t wait—book your dream getaway today and create unforgettable memories.
Konjaku-so - Vacation STAY 62017v
Osaka 4-7-24 Benten Minato-ku Konjaku-so
WiFi
Parking
We speak
JA
WiFi
Parking
We speak
JA
Situated in Osaka with Minato Kumin Centre and Isoji Central Park nearby, Konjaku-so - Vacation STAY 62017v features accommodation with free WiFi and free private parking. The property is around 3.5 km from Tosa Inari Shrine, 3.7 km from Tsunami and Storm Surge Disaster Prevention Station and 3.7 km from Ikasuri Shrine. The property is non-smoking and is located 2.8 km from Aeon Mall Osaka Dome City.
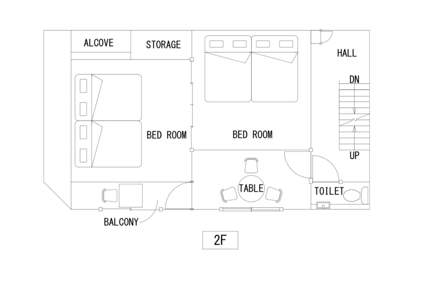
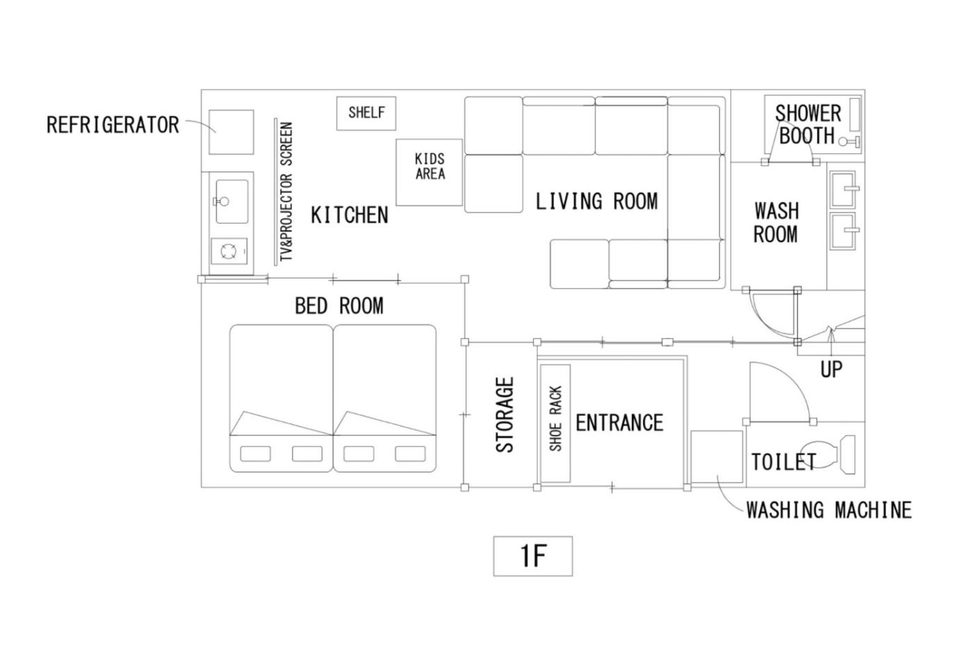
The holiday home is air-conditioned and has 3 bedrooms as well as a fully equipped kitchen with a microwave.
Wakoji Temple is 3.9 km from Konjaku-so - Vacation STAY 62017v, while Amida Pond is 4 km from the property. Itami Airport is 22 km away.
The hotel day starts from hour 15:00 and ends at 10:00.
If you would like a qualified invoice,please contact the property directly.This property will not accommodate hen, stag or similar parties.
Holiday Home. Guests can make meals in the kitchen that is equipped with a stovetop, a refrigerator, kitchenware and a microwave. The holiday home provides air conditioning, a washing machine, as well as a private bathroom featuring a bath and a shower. The unit offers 6 beds.
License number: 大阪市指令 大保環 第23-2934号
Property is cleaned by professional cleaning companies
Non-smoking rooms
Guest accommodation sealed after cleaning
Guests have the option to cancel any cleaning services for their accommodation during their stay
Contactless check-in/check-out
WiFi
Private parking
Free parking
Air conditioning
Free WiFi
Internet services
WiFi available in all areas
Parking on site
Non-smoking throughout
Parking
